Descrizione
DISPONIBILITA' IMMEDIATA!!!
A Morbio Inferiore,
nella zona residenziale più panoramica e soleggiata, vicina a tutti i servizi come scuola, supermercati, accesso autostradale ecc..
in palazzina edificata negli anni '70 ma sempre mantenuta in buono stato,
composta da sole tre unità (una per piano),
AFFITTIAMO al secondo ed ultimo piano,
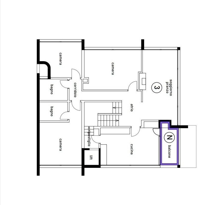
elegante attico 4.5 di circa 140 mq cosi composto:
accesso mediante lift privato,
ampia cucina separata abitabile con accesso alla terrazza coperta panoramica,
luminoso soggiorno con camino,
due camere singole,
primo bagno con doccia completamente rifatto a nuovo,
camera matrimoniale con armadiatura e nuovo bagno privato ensuite con doccia,
l'immobile offre un bel giardino comune con una grande piscina esposta a sud-ovest, dove poter rilassarsi e godere del relax meritato,
completano l'offerta una cantina privata e riscaldata,
un posteggio esterno scoperto ed un posteggio esterno coperto.
Pigione mensile CHF 1.900
Acconto spese CHF 250
due posteggi CHF 200
totale CHF 2.350
Disponibile al piano primo un appartamento 4.5 a CHF 1.650 + spese e posteggi.
Stai cercando una soluzione dove poter vivere in tranquillità?
Un appartamento con piscina dove potersi rilassare?
Contattaci al più presto per organizzare una visita senza impegno!
IMMEDIATE AVAILABILITY!!!
In Morbio Inferiore,
in the most panoramic and sunny residential area, close to all main amenities such as schools, supermarkets, motorway access, etc.,
in a building from the 1970s, always well maintained,
consisting of only three units (one per floor),
we offer for rent on the second and top floor,
an elegant 4.5-room penthouse of approx. 140 sqm, composed as follows:
private lift access,
spacious separate eat-in kitchen with access to the covered panoramic terrace,
bright living room with fireplace,
two single bedrooms,
first bathroom with shower completely renovated,
master bedroom with built-in wardrobes and new en-suite bathroom with shower,
the property also features a beautiful shared garden with a large south-west facing swimming pool, perfect for relaxing and enjoying peaceful moments,
the offer is completed by a private heated cellar,
one uncovered outdoor parking space and one covered parking space.
Monthly rent CHF 2,200
Utilities advance CHF 250
Two parking spaces CHF 200
Total CHF 2,650
Are you looking for a peaceful living solution?
An apartment with a pool where you can truly relax?
? Contact us now to arrange a viewing with no obligation!
IMMEDIATE AVAILABILITY!!!
In Morbio Inferiore,
in the most panoramic and sunny residential area, close to all main amenities such as schools, supermarkets, motorway access, etc.,
in a building from the 1970s, always well maintained,
consisting of only three units (one per floor),
we offer for rent on the second and top floor,
an elegant 4.5-room penthouse of approx. 140 sqm, composed as follows:
private lift access,
spacious separate eat-in kitchen with access to the covered panoramic terrace,
bright living room with fireplace,
two single bedrooms,
first bathroom with shower completely renovated,
master bedroom with built-in wardrobes and new en-suite bathroom with shower,
the property also features a beautiful shared garden with a large south-west facing swimming pool, perfect for relaxing and enjoying peaceful moments,
the offer is completed by a private heated cellar,
one uncovered outdoor parking space and one covered parking space.
Monthly rent CHF 2,200
Utilities advance CHF 250
Two parking spaces CHF 200
Total CHF 2,650
Are you looking for a peaceful living solution?
An apartment with a pool where you can truly relax?
? Contact us now to arrange a viewing with no obligation!
DISPONIBILITÉ IMMÉDIATE !!!
À Morbio Inferiore,
dans la zone résidentielle la plus panoramique et ensoleillée, proche de toutes les commodités telles que écoles, supermarchés, accès autoroutier, etc.,
dans un immeuble des années 70 toujours bien entretenu,
composé de seulement trois unités (une par étage),
nous proposons à la location au deuxième et dernier étage,
un élégant attique de 4.5 pièces d’environ 140 m², réparti comme suit :
accès par ascenseur privatif,
grande cuisine séparée habitable avec accès à la terrasse couverte panoramique,
séjour lumineux avec cheminée,
deux chambres individuelles,
première salle de bain avec douche entièrement rénovée,
chambre parentale avec armoires intégrées et nouvelle salle de bain privative avec douche,
le bien dispose également d’un agréable jardin commun avec une grande piscine orientée sud-ouest, idéale pour se détendre,
complètent l’offre : une cave privée chauffée,
une place de parc extérieure non couverte et une place de parc couverte.
Loyer mensuel CHF 2'200
Charges CHF 250
Deux places de parc CHF 200
Total CHF 2'650
Vous recherchez un cadre de vie paisible ?
Un appartement avec piscine pour vous détendre ?
? Contactez-nous dès maintenant pour organiser une visite sans engagement !